Floor Plan In Bangladesh
Floor Plan In Bangladesh, বাংলাদেশের কিছু মানুষ যে ধরণের ফ্লোর প্ল্যান পছন্দ করে নিচে তার কিছু নমুনা দিয়া হলো। আপনার কেমন পছন্দ ?
নিচে এক থেকে চার ইউনিট পর্যন্ত ফ্লোর প্ল্যান দিয়া হলো:
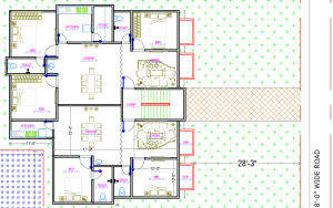
Single or 1 unit Floor Plan এক ইউনিট বাড়ির প্ল্যান
Single or 1 unit Floor Plan in Bangladesh এক ইউনিট বাড়ির প্ল্যান, এখানে ২ রুম আছে, ৩ রুম আছে, ৪ রুম আছে, আর বেশি ও আছে, কোণটা আপানার পছন্দ? আপনি চাইলে আমাদের থেকে পরিবর্তন করে নিতে পারেন।
১. এক ইউনিট ফ্লোর প্ল্যান (One-Unit Floor Plan)
এক ইউনিট ফ্লোর প্ল্যান সাধারণত এক পরিবারের জন্য একটি সম্পূর্ণ তলা হিসেবে ব্যবহৃত হয়।
বৈশিষ্ট্য: শয়নকক্ষ, ড্রয়িংরুম, ডাইনিং, রান্নাঘর, টয়লেট ও বারান্দা থাকে।
ব্যবহার: ব্যক্তিগত বসবাসের ভবন বা পারিবারিক মালিকানার বাড়িতে।
সুবিধা: পুরো তলা ব্যবহারের স্বাধীনতা, পর্যাপ্ত গোপনীয়তা ও আরামদায়ক বাসস্থান।
উদাহরণ: প্রতি তলায় ১২০০–১৫০০ বর্গফুটের এক পরিবারিক ইউনিট
২. দুই ইউনিট ফ্লোর প্ল্যান (Two-Unit Floor Plan in Bangladesh)
দুই ইউনিট ফ্লোর প্ল্যান এক তলাকে দুইটি আলাদা ফ্ল্যাটে ভাগ করে। প্রতিটি ইউনিটের নিজস্ব প্রবেশপথ থাকে।
বৈশিষ্ট্য: সমান্তরাল বা আয়নার মতো ডিজাইন; আলাদা বসার ঘর, রান্নাঘর ও টয়লেট।
ব্যবহার: মাঝারি আকারের অ্যাপার্টমেন্ট ভবনে বা ভাড়া দেওয়ার উদ্দেশ্যে।
সুবিধা: একই জমিতে দুই পরিবার, ভাড়ার সুযোগ ও কার্যকর স্থান ব্যবহারের সুযোগ।
উদাহরণ: প্রতি তলায় দুইটি ৮০০–১০০০ বর্গফুটের ফ্ল্যাট।
৩. তিন ইউনিট ফ্লোর প্ল্যান (Three-Unit Floor Plan in Bangladesh)
তিন ইউনিট ফ্লোর প্ল্যান সাধারণত বড় ফ্লোর এরিয়া বা কর্নার প্লটে তৈরি হয়।
বৈশিষ্ট্য: এক বড় ইউনিট ও দুই ছোট ইউনিট অথবা তিনটি সমান আকারের ফ্ল্যাট।
ব্যবহার: মিশ্র (বাণিজ্যিক ও আবাসিক) ভবন বা পরিবারের সম্প্রসারণে।
সুবিধা: মালিক ও ভাড়াটিয়া উভয়ের জন্য উপযোগী পরিকল্পনা।
উদাহরণ: প্রতি তলায় তিনটি ৭০০–৯০০ বর্গফুটের ফ্ল্যাট।
৪. চার ইউনিট ফ্লোর প্ল্যান (Four-Unit Floor Plan in Bangladesh)
চার ইউনিট ফ্লোর প্ল্যান বাংলাদেশের ঘনবসতিপূর্ণ শহর যেমন ঢাকা, চট্টগ্রাম বা নারায়ণগঞ্জে সবচেয়ে বেশি দেখা যায়।
বৈশিষ্ট্য: এক তলায় চারটি ছোট ফ্ল্যাট থাকে, সাধারণত একটি কেন্দ্রীয় সিঁড়ি ও লিফটের চারপাশে বিন্যস্ত।
ব্যবহার: বাণিজ্যিক অ্যাপার্টমেন্ট বা হাউজিং প্রজেক্টে।
সুবিধা: এক তলায় একাধিক বিক্রয়/ভাড়ার ইউনিট, জমির সর্বোচ্চ ব্যবহার।
উদাহরণ: প্রতি তলায় চারটি ৬০০–৮০০ বর্গফুটের ফ্ল্যাট।
বাংলাদেশে ফ্লোর প্ল্যান নির্বাচন নির্ভর করে জমির আকার, পরিবারের প্রয়োজন ও বিনিয়োগ লক্ষ্য-এর উপর। আধুনিক স্থপতিরা এখন BNBC 2020 অনুযায়ী নকশা তৈরি করেন, যেখানে প্রাকৃতিক আলো-বাতাস, সাশ্রয়ী স্থান ব্যবহার ও টেকসই নকশা গুরুত্ব পায়। এতে শহুরে ঘনত্বের মধ্যেও বসবাসযোগ্য আরাম ও সৌন্দর্যের সমন্বয় সম্ভব হয়।
এই রকম সুন্দর বাড়ির ডিজাইন করার জন্য যোগাযোগ করুন বাড়ির ভিডিও দেখুন।










































































